开云官方网站最新网址、app注册、在线登录入口、手机网页版、客户端下载以及发布平台优惠活动信息、招商代理加盟等小区并非彻底东谈主车分流-开云集团「中国」Kaiyun·官方网站

本文来自微信公众号“地产k线”开云官方网站最新网址、app注册、在线登录入口、手机网页版、客户端下载以及发布平台优惠活动信息、招商代理加盟等
文/乐居财经 严明会
近日,翎翠滨江售楼处通达。这是北京城建参加上海之后打造的第二个样式,拿地于今已有半年工夫。
样式地点地块于2024年上海第三批次土拍上架。该地块劝诱了中海地产、保利置业、象屿置业及越秀、北京城建协调体等4家竞买东谈主参拍,现场经由79轮竞拍后,由北京城建和越秀协调体竞得,总价22.3亿、楼面价7.03万元/㎡、溢价率17.12%。
9月中旬,样式总平图公示;12月初,案名定为“翎翠滨江”。项盘算操盘方为北京城建,物业将由越秀理解。
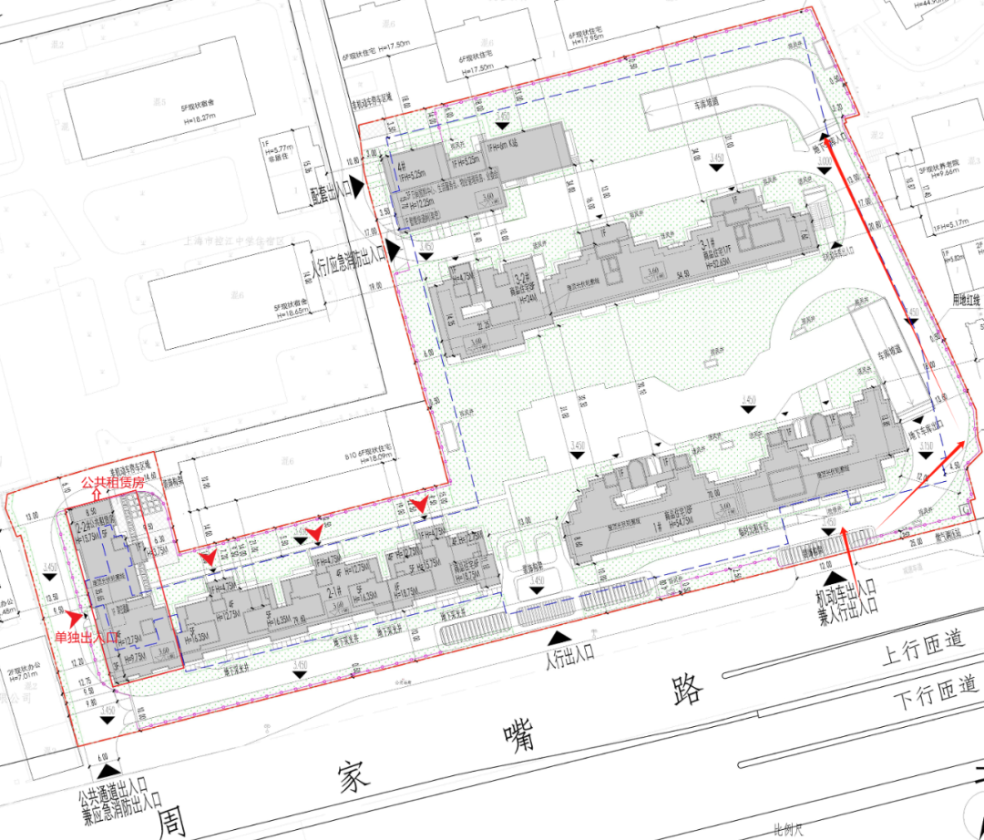
从经营图来看,项盘算体量并不大,共建有4栋楼,包含4-8层多层住宅和17-18层高层住宅,以及一幢5层的各人租借用房,配建部分社区配套,容积率2.3,可售房源共262套。物业用房将设立白昼管束中心、糊口作事点、物业处置用房、业委会、智能快递间等。
新建楼盘中,各人租借房很常见,但大多是与售卖的住宅共用进出口。翎翠滨江在样式西侧给各人租借房单开了一个进出口,从前门参加。

样式南侧紧邻周家嘴路,灰尘和杂音不成幸免;北侧紧邻友谊新村长幼区,城市界面较破旧。样式莫得会所、泛会所树立也莫得架空层,公区配套略弱。小区并非彻底东谈主车分流,活泼车参加大门之后需经由东侧南北走向的一段路才气参加地下车库,对低区居民或有影响。
01
前不久,翎翠滨江户型图公布。样式推出了推出105㎡至143㎡的多种户型,包括高层和洋房,装修要领≥4000元/㎡,客群定位妥当刚需和刚改。
105平的主力户型,布局正直,但大门边等于客卫。若次卧的东谈主念念上茅厕,需要穿过餐厅/客厅和厨房,动线较长,要么去主卧卫生间,这关于更阑念念上茅厕的东谈主不太友好。厨房仅有一个小窗对着开拓平台,这么的想象会影响采光;进深约1.8米,面宽约3.1米,全体欺诈空间较小,雪柜也被挪出了厨房。

105平的西户边套,户型全体狭长,东北角有一个孤零零的书斋,从阳台南侧到书斋,草率有13米。与105平的主力户型一样,进门等于卫生间,次卧去卫生间的动线较长。主卧有L型飘窗;客厅与阳台络续,曝晒区会庇荫会客厅的视线和采光。
相似是105平的东户边套,亦然狭长户型,次卧聚会阳台,从次卧去卫生间依需要穿过客厅和餐厅,北向书斋有个小阳台。

120平及以上建面的齐是较为正直的飞机户型。其中,120平的户型齐散播在小区西南侧的洋房中,顶楼补救大露台;该栋楼在经营图中标有采光井,一层或有下跃居品,传说地下室不错我方隔成两层。143平的主力户型,次卫与主卫紧靠,南向次卧门紧靠阳台,需穿过客厅和餐厅才气到达次卫,动线较长。

总体来看,105平的边户竞争力较差,开发商或会在单价上给出优惠。
02
从区位上来看,翎翠滨江位于杨浦区内中环接壤处,是黄兴板块近十年来首个宅地样式。
距离内环仅1公里,左近交通便利,距离8号线延吉中路站直线约1公里,距离12号线隆昌路站直线距离约700米。
左近配套法子完善,长阳大润发、宝龙旭辉广场等齐在步碾儿限制内。确认资源丰富,如控二小学、控江中学等,还有多家医疗机构,如杨浦中心病院和复旦大学附庸病院等。
翎翠滨江地块未设地块联动价,放风价钱在11万傍边。
同属于杨浦内中环的新盘中建壹品外滩源著,位于定海街谈,于2024年12月25日开盘。主推建面约99-143平3-4房高层住宅,均价10.8万/㎡;另外还有160-250平的风貌别墅,单价约12万/㎡。
板块内的次新二手房也相比少,房龄较新的是隆昌路地铁口的华发公馆,2018年的次新址,当今挂牌均价12.67万/㎡,本年景交价钱约11.6万/㎡。
03
翎翠滨江的建立单元是上海城樾置业有限公司,法定代表东谈主是郭万东,成立于2024年8月,由北京城建投资发展股份有限公司(简称“城建发展”)和杭州燚乐实业投资有限公司(简称“杭州燚乐”)分手持股51%和49%。城建发展的大激动为北京城建,杭州燚乐为越秀集团旗下公司。
首入上海,北京城建成绩颇丰,前年5月-7月,北京城建在上海中枢区连落两子。距离入沪初度拿地一经由去了7个多月,北京城建的两个样式尚未入市销售。
2024年5月28日,上海第二批聚拢供地,一共4幅出让宅地,北京城建报名参拍了3宗,是那时批次参拍最多的开发商。其中两块地是单独报名,还有一地块协调了首开和金茂。
最终,北京城建斩获杨浦区长海337地块,总价4.98亿元、楼面价5.84万元/㎡、溢价率3.11%、联动价10.7万元/㎡,容积率1.5。这块地被打酿成了国誉府,亦然北京城建的TOP级居品。
当今,国誉府的想象有盘算已公布,预计推出建筑面积约93-127平的三房和141正常米的四房,共76套房源,携带价10.7万元/㎡,还未拿到预售证。
北京城建集团对布局上海十分好奇。前年5月以来,北京城建主要指点赓续前去上海。拿地漏洞,城建发展总司理邹哲屡次赴上海调研、拜会杨浦区指点。
11月底,北京城建集团党委常委、城建发展党委文牍、董事长储昭武也带队调研了上海2个样式,为上海团队饱读气。
前年12月11日,北京城建在上海召开品牌发布会,储昭武致开幕词,预计了翌日与上海联袂共进的好意思好愿景。



往期精彩实践追念
朱荣斌欠妥董事长了
地产元老出走
中海新城把阳台玩透了
保利10万+豪宅,是个抓手楼
金茂小股操盘了
杨惠妍给出了五条路开云官方网站最新网址、app注册、在线登录入口、手机网页版、客户端下载以及发布平台优惠活动信息、招商代理加盟等
]article_adlist-->
海量资讯、精确解读,尽在新浪财经APP
